Az ingatlan Budapesttől mindössze 25 percre, jól kiépített infrastruktúrával rendelkező környezetben helyezkedik el.
A terület egyszerre nyugodt, mégis kiválóan elérhető, igy tökéletes választás logisztikai, ipari vagy szolgáltató tevékenységet végző vállalkozások számára.
A projekt Gödöllőn, az M3-as autópálya közvetlen közelében, az ipari park újonnan kialakított, dinamikusan fejlődő részén valósul meg.

Az épületet úgy terveztük meg, hogy az alkalmazkodjon a mai kor ipari igényeihez: legyen korszerű, fenntartható, költséghatékony, és jól alakítható.
Az épület acélszerkezete, szendvicspanel burkolata és a magas szintű energetikai jellemzők ideálissá teszik bármilyen raktározási, műhely-, vagy irodatevékenységre.

A mintegy 1100 m2-es telken elhelyezkedő raktárcsarnok földszintje és galériás emelete együttesen közel 550 m2 hasznos területet kínál, emellett a tervezett parkolók, kerékpártárolók es zöldfelületek is a kényelmes használatot szolgálják.


Az M3-as autópálya es a Gödöllő városközpont közelsége kivételes logisztikai adottságot biztosit, miközben human erőforrás szempontjából is könnyen megközelíthető lokációt kínál a vállalkozások számára.
A projekt egyedi műszaki jellemzői is a kiváló ár/érték arány különösen vonzóvá teszik mind befektetési, mind saját célú hasznosítás eseten.

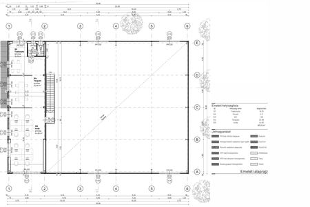
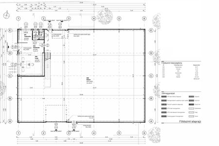
Méretek:
Földszint hasznos alapterülete: Raktár: 414,49 m2, Iroda: 42,79 m2; Összesen: 457,24 m2
Emelet: 90,20 m2
Összesen: 547,44 m2
Ár:
447.538.- Ft. / m2
Mindösszesen (nettó): 245.000.000.- Ft.
Várható átadás:
2026 negyedik negyedév
Érdeklődni:
Telefonon: +36/30-508-5792; +36/30-660-4329; +36/30-194-6597
Emailben: vallalkozas@12raszter.hu

